Description
TMS-080-CF2 – 41’x23′ Small Home with Vaulted Master & Balcony
If you’re searching for a compact yet luxurious small home plan that maximizes every square foot… TMS-080-CF2 is designed just for you.
At 41 feet wide and 23 feet deep, this thoughtfully crafted 2-story home delivers exceptional comfort within a manageable footprint — making it ideal for narrow lots, rural properties, lake homes, vacation retreats, or full-time downsizing.
Built on a crawlspace foundation, this home features 2×6 exterior framing for strength and energy efficiency, paired with 2×4 interior walls for cost-effective construction. The steep 9:12 main roof pitch not only enhances curb appeal but also improves water and snow runoff — perfect for many U.S. climate zones.
Main Floor Highlights
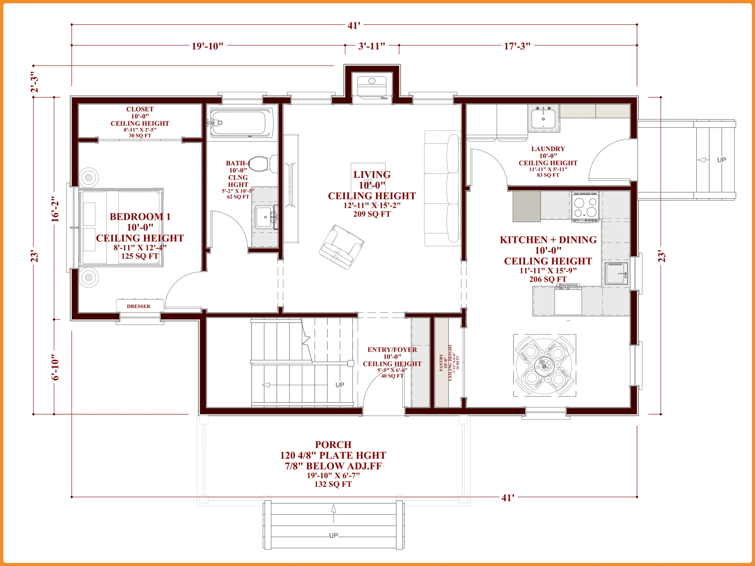
Step inside from the 132 SQ FT covered front porch into a welcoming entry foyer.
The heart of the home is the 209 SQ FT living room, featuring 10-foot ceilings that create an open and spacious atmosphere — ideal for entertaining or relaxing by the fireplace.
The 206 SQ FT kitchen and dining area (11’-11” x 15’-9”) provides generous cabinet space, modern layout flexibility, and room for a full dining table.
Also on the main level:
-
Bedroom 1 (125 SQ FT) with 8’-11” ceiling height
-
Full bathroom (62 SQ FT)
-
Separate closet space
-
Large dedicated laundry room (83 SQ FT)
This layout ensures convenience for guests or multi-generational living.
Second Floor Retreat
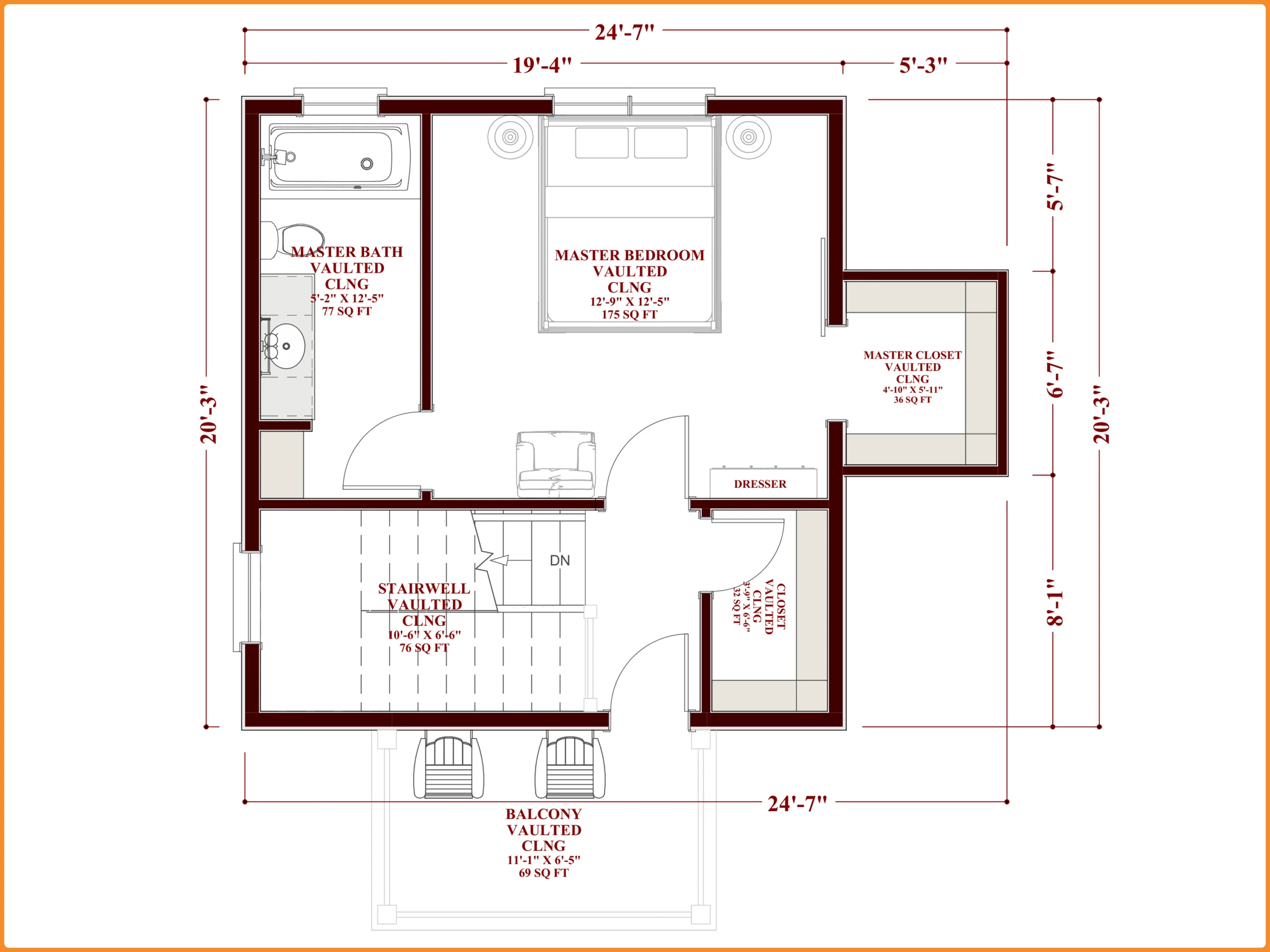
Upstairs, the vaulted design continues to impress.
The Master Bedroom (175 SQ FT) features a beautiful vaulted ceiling, giving the room dramatic height and architectural character.
The suite includes:
-
Private Master Bath (77 SQ FT)
-
Vaulted Walk-In Closet (36 SQ FT)
-
Stairwell with vaulted ceiling
-
Access to a charming 69 SQ FT balcony
This upper level feels private, cozy, and elevated — perfect for a relaxing retreat.
Total Area Breakdown
-
First Floor Conditioned Area: 888 SQ FT
-
Second Floor Conditioned Area: 424 SQ FT
-
Total Conditioned Living Area: 1,312 SQ FT
-
Porch: 132 SQ FT
-
Balcony: 69 SQ FT
-
Lot Size Compatibility: 0.11 acre and above
Why U.S. Buyers Love This Plan
✔ Perfect for narrow lots
✔ Ideal starter home or retirement home
✔ Great short-term rental or vacation property
✔ Efficient footprint reduces building costs
✔ High ceilings add perceived spaciousness
✔ Balanced bedroom privacy
At TM Studio-Small House Design, we specialize in smart, build-ready small home plans tailored for American lifestyles. Every detail in TMS-080-CF2 is optimized for comfort, efficiency, and timeless charm.
Looking for something slightly different?
👉 You can check another stunning house plan : TMS-033-CF2

Reviews
There are no reviews yet