Description
Looking for a cozy, practical home that feels just right… not too big, not too small?
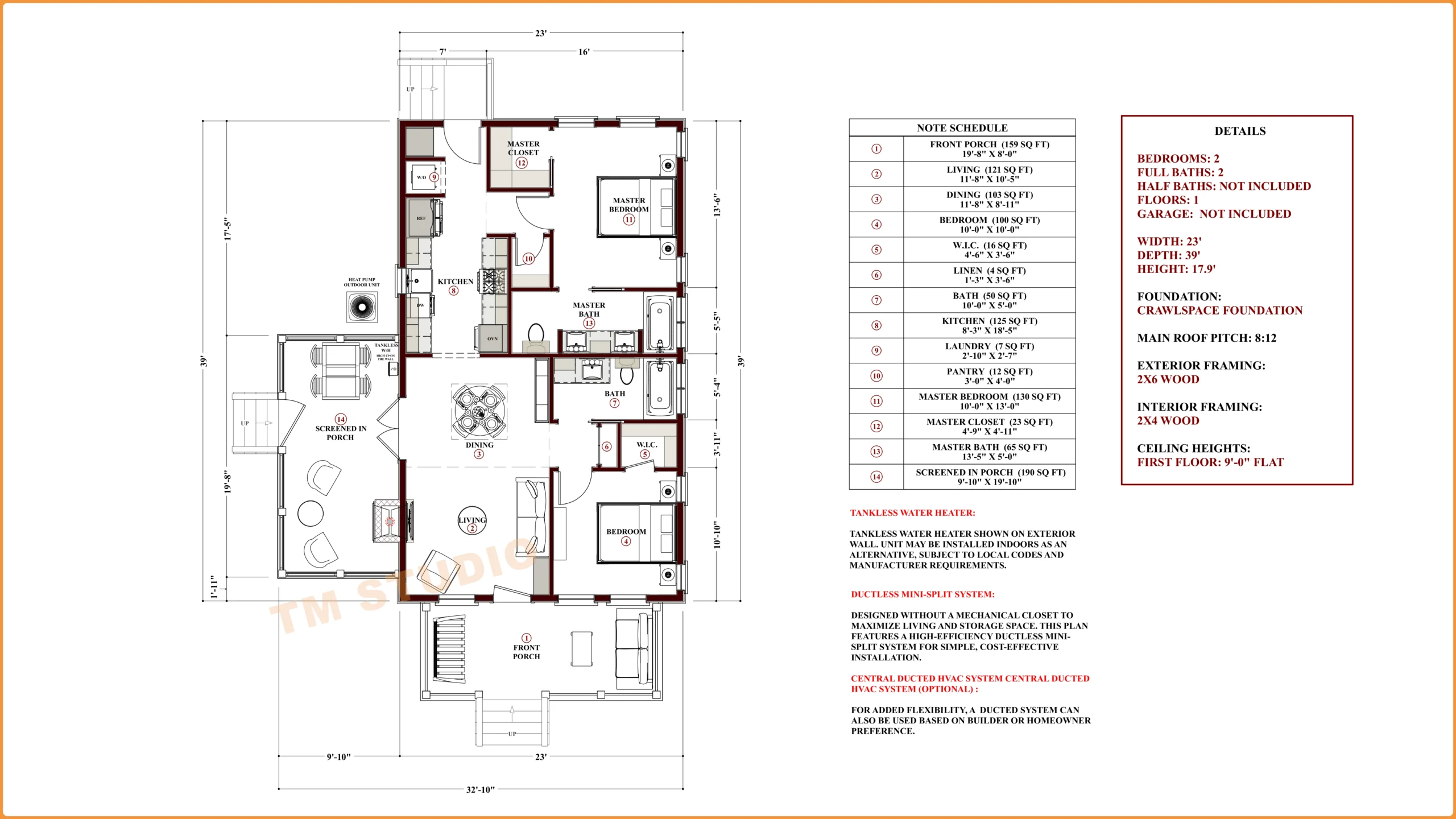
The TMS-103-CF1 by TM Studio-Small House Design delivers exactly that balance.
This thoughtfully designed 2-bedroom cottage packs everything you need into a highly efficient 903 sq ft layout, making it perfect for modern American living. Whether you’re building a starter home, a downsizing retreat, or a vacation getaway… this plan adapts beautifully.
Step onto the welcoming 159 sq ft front porch, where morning coffee just feels better… then walk into a bright, open-concept living and dining area designed to maximize both comfort and connection. The flow is natural, airy, and perfect for everyday living.
The kitchen, compact yet highly functional, includes a dedicated pantry—making storage simple and cooking enjoyable. Just beyond, the layout smartly separates private and shared spaces, giving both homeowners and guests the privacy they need.
The master bedroom suite offers a peaceful retreat with its own bathroom and closet space, while the second bedroom is ideal for guests, family, or even a home office setup.
And here’s where this home truly shines…
The 190 sq ft screened-in porch extends your living space outdoors—perfect for relaxing evenings, entertaining friends, or simply enjoying nature without interruption.
Built with 2×6 exterior framing, a durable 8:12 roof pitch, and a crawlspace foundation, this home is designed for long-term performance across a variety of US climates. The inclusion of a ductless mini-split system ensures energy efficiency, with the option to upgrade to a central HVAC system if preferred.
With its compact footprint (23’ width x 39’ depth) and smart layout, this plan is ideal for smaller lots while still delivering everything a modern homeowner needs.
✨ Simple… smart… and incredibly livable.
That’s the beauty of TMS-103-CF1.

Reviews
There are no reviews yet