Description
Looking for a modern small house plan that blends charm, comfort, and efficiency?
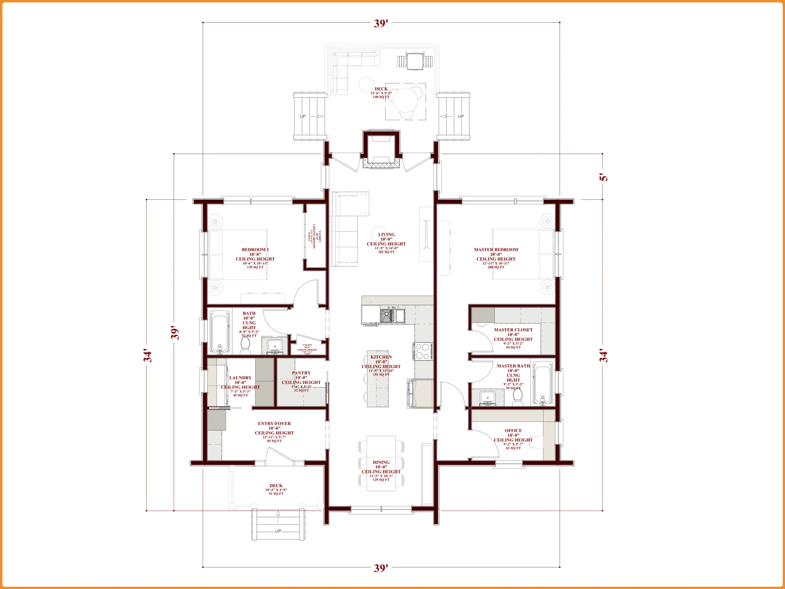
House Plan TMS-075-CF1 is a beautifully balanced one-story cottage-style home designed for today’s US homeowners who want smart space planning without sacrificing elegance.
With a 39’ x 39’ footprint, this home fits comfortably on a 0.11-acre lot, making it ideal for suburban neighborhoods, downsizing homeowners, retirees, or first-time buyers.
Inside, you’ll find 1,265 square feet of conditioned living space, all thoughtfully arranged on a single level. The layout centers around a bright living room featuring 10-foot ceilings, creating a spacious and open atmosphere rarely found in homes this size.
The kitchen (96 sq ft) is positioned at the heart of the home and includes a functional island and a 32 sq ft pantry, providing ample storage and workspace. Just steps away, the dedicated dining area keeps gatherings intimate and efficient.
The private master suite is designed for comfort, offering:
-
A well-proportioned bedroom
-
A private master bath
-
A 54 sq ft master closet
On the opposite side of the home, the secondary bedroom enjoys access to a full bathroom—ideal for guests, family members, or a flexible office setup.
Additional highlights include:
-
Dedicated 45 sq ft laundry room
-
Crawlspace foundation
-
2×6 exterior framing for structural strength and insulation performance
-
2×4 interior framing
-
8:12 main roof pitch
-
10-foot first-floor ceiling height
-
No garage
Outdoor living is equally inviting with 191 sq ft of deck space, giving homeowners room for seating, entertaining, or quiet evenings outside.
This plan offers a clean architectural profile with modern cottage appeal—making it attractive for both primary residences and vacation homes.
If you love this layout, you can also check another stunning house plan TMS-074-CF1 for more small home inspiration.
Designed for practicality, efficiency, and timeless curb appeal, TMS-075-CF1 by TM Studio-Small House Design delivers high livability in a compact footprint—perfect for today’s smart US buyer.
Technical Specifications
-
Floor Plan Number: TMS-075-CF1
-
Conditioned Area: 1,265 Sq Ft
-
Unconditioned Area: 191 Sq Ft
-
Total Coverage: 1,456 Sq Ft
-
Livable Area: 1,204 Sq Ft
-
Bedrooms: 2
-
Bathrooms: 2 Full
-
Floors: 1
-
Garage: 0 Car
-
Width: 39’
-
Depth: 39’
-
Height: 20.9’
-
Foundation: Crawlspace
-
Exterior Framing: 2×6 Wood
-
Interior Framing: 2×4 Wood
-
Main Roof Pitch: 8:12
-
First Floor Ceiling Height: 10’

Reviews
There are no reviews yet