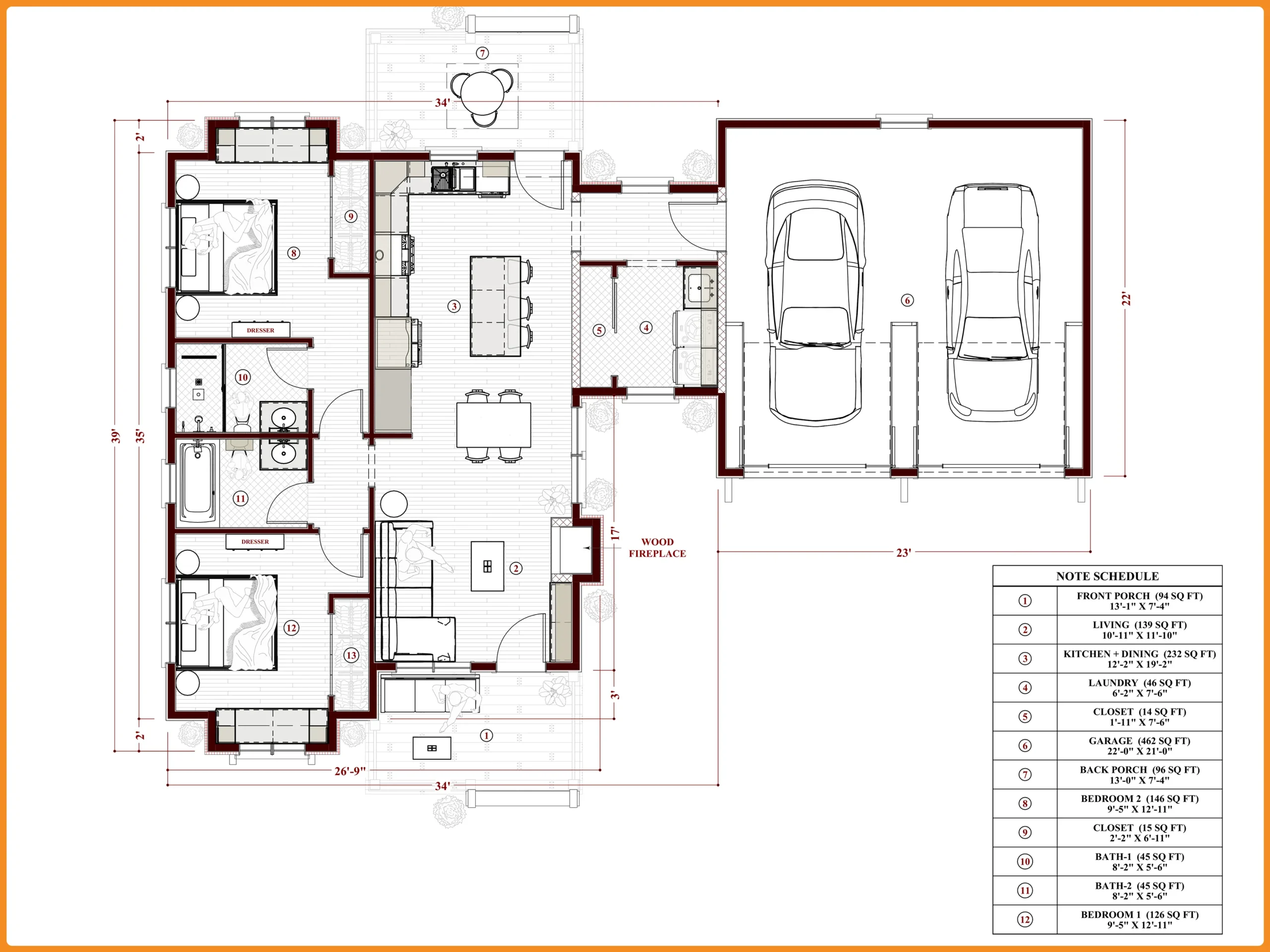
Description
Looking for a cozy yet functional cottage home that fits perfectly on a compact lot? The TMS-061-CF1 by TM Studio-Small House Design delivers everything modern US homeowners want… comfort, efficiency, and timeless rustic charm.
Step inside and you’re welcomed by an open-concept living area centered around a warm fireplace — perfect for relaxing evenings. The flow continues into a beautifully designed kitchen and dining space, featuring a spacious island that becomes the heart of the home… ideal for family meals or entertaining guests.
The layout is thoughtfully planned with two comfortable bedrooms, including a primary suite positioned for privacy. Both bedrooms are paired with full bathrooms, making this home practical for families, couples, or even vacation rentals.
One standout feature is the attached 2-car garage, offering not just parking but valuable storage — something US buyers always prioritize. The dedicated laundry room adds everyday convenience, while the front and back porches extend your living space outdoors… perfect for morning coffee or evening relaxation.
Built with 2×6 exterior framing, a 9 ft ceiling height, and a balanced 5:12 roof pitch, this home ensures durability, energy efficiency, and classic curb appeal.
Whether you’re planning a primary residence, downsizing, or building a rental property, this design offers the perfect balance of size, style, and function.
📐 Technical Details (From Floor Plan)
- Floor Plan Code: TMS-061-CF1
- Bedrooms: 2
- Bathrooms: 2
- Floors: 1
- Garage: 2-Car (462 sq ft)
- Total Conditioned Area: 1008 sq ft
- Unconditioned Area: 693 sq ft
- Lot Size Suggestion: 0.24 Acre
- Width: 34 ft
- Depth: 39 ft
- Height: 17’-9”
- Foundation: Slab-on-grade
- Main Roof Pitch: 5:12
- Ceiling Height: 9 ft
- Framing:
- Exterior: 2×6 wood
- Interior: 2×4 wood

Tammy M. (verified buyer) –
I purchased this house plan with a major modification to add a pantry in the kitchen. The TM Studio team handled the change professionally and delivered exactly what I wanted. There was a one-day delay, but it wasn’t an issue. Communication was clear, and the final plan turned out perfect. Very happy with both the design and the service. Thank you TM studio team
TM Studio (store manager) –
Thank you for your kind review, Tammy! We’re glad we could help with the kitchen pantry modification and that you’re happy with the final design. It was a pleasure working with you. Wishing you the best with your home project! 😊