Description
TMS-094-CF1 – 39’ x 31’ Beautiful Cottage House Plan | 2 Bed Small Home Design
Looking for a smart, stylish, and highly functional small home? The TMS-094-CF1 cottage house plan by TM Studio-Small House Design delivers everything modern homeowners need—efficient space planning, cozy aesthetics, and strong construction standards… all within a compact footprint.
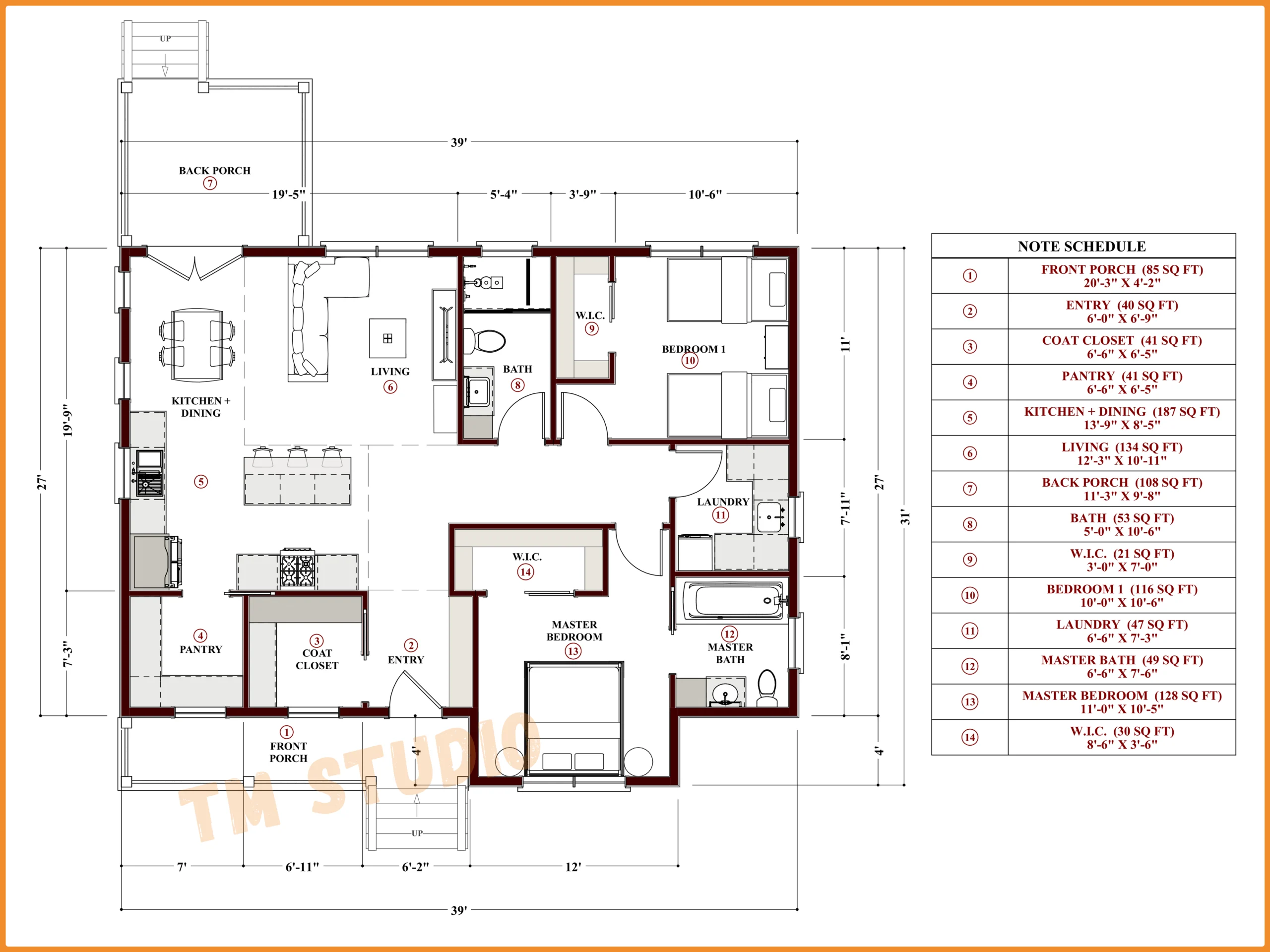
This 39’ x 31’ single-story home offers 1,101 sq ft of conditioned living space, making it perfect for first-time buyers, downsizers, vacation homes, or rental investments.
Step through the welcoming front porch (85 sq ft) and into a well-defined entry area with a coat closet—designed for practical daily living. From here, the home opens into a bright open-concept living area, where the living room (134 sq ft) connects seamlessly to the kitchen and dining space (187 sq ft). The layout encourages natural light, easy movement, and comfortable entertaining.
The kitchen is designed with efficiency in mind, featuring a dedicated pantry (41 sq ft) for additional storage—perfect for keeping your space clutter-free.
Toward the private side of the home, the master suite (128 sq ft) offers a peaceful retreat with its own walk-in closet (30 sq ft) and attached master bathroom (49 sq ft). The second bedroom (116 sq ft), also equipped with a walk-in closet, is ideal for guests, children, or even a home office setup.
A separate laundry room (47 sq ft) adds everyday convenience, while the second full bathroom (53 sq ft) ensures comfort for both residents and guests.
One of the standout features of this home is its outdoor living potential. The large back porch (108 sq ft) creates the perfect space for relaxing evenings, entertaining, or enjoying nature.
From a construction standpoint, this plan is built for long-term value with:
- 2×6 exterior wall framing
- 2×4 interior walls
- 9-foot ceiling height
- 8:12 roof pitch
- Crawlspace foundation
Whether you’re building your dream starter home or adding a profitable rental property to your portfolio, this plan offers a perfect balance of comfort, efficiency, and timeless cottage charm.
📌 Floor Plan Code: TMS-094-CF1
📌 Designed by: TM Studio-Small House Design

Joseph (verified buyer) –
great quality work with excellent attention to detail. The team was very supportive.
TM Studio (store manager) –
Thank you, Joseph, We’re delighted to hear you appreciated the quality and attention to detail, along with our team’s support. Your feedback truly means a lot to us. We truly value your trust in TM Studio and wish you great success with your project.