Description
By TM Studio-Small House Design
If you’re searching for a compact yet visually stunning cottage home, Floor Plan TMS-056-CF1 delivers charm, comfort, and construction practicality in one efficient design.
Designed within a 30-foot width and 38-foot depth, this 2-bedroom small house plan offers 1,083 sq ft of conditioned living space while maintaining structural efficiency and architectural warmth.
The exterior showcases timeless cottage styling with a steep 8:12 roof pitch, front covered porch (181 sq ft), and balanced window placement that enhances curb appeal. The crawlspace foundation makes it suitable for many US soil conditions while keeping construction costs practical.
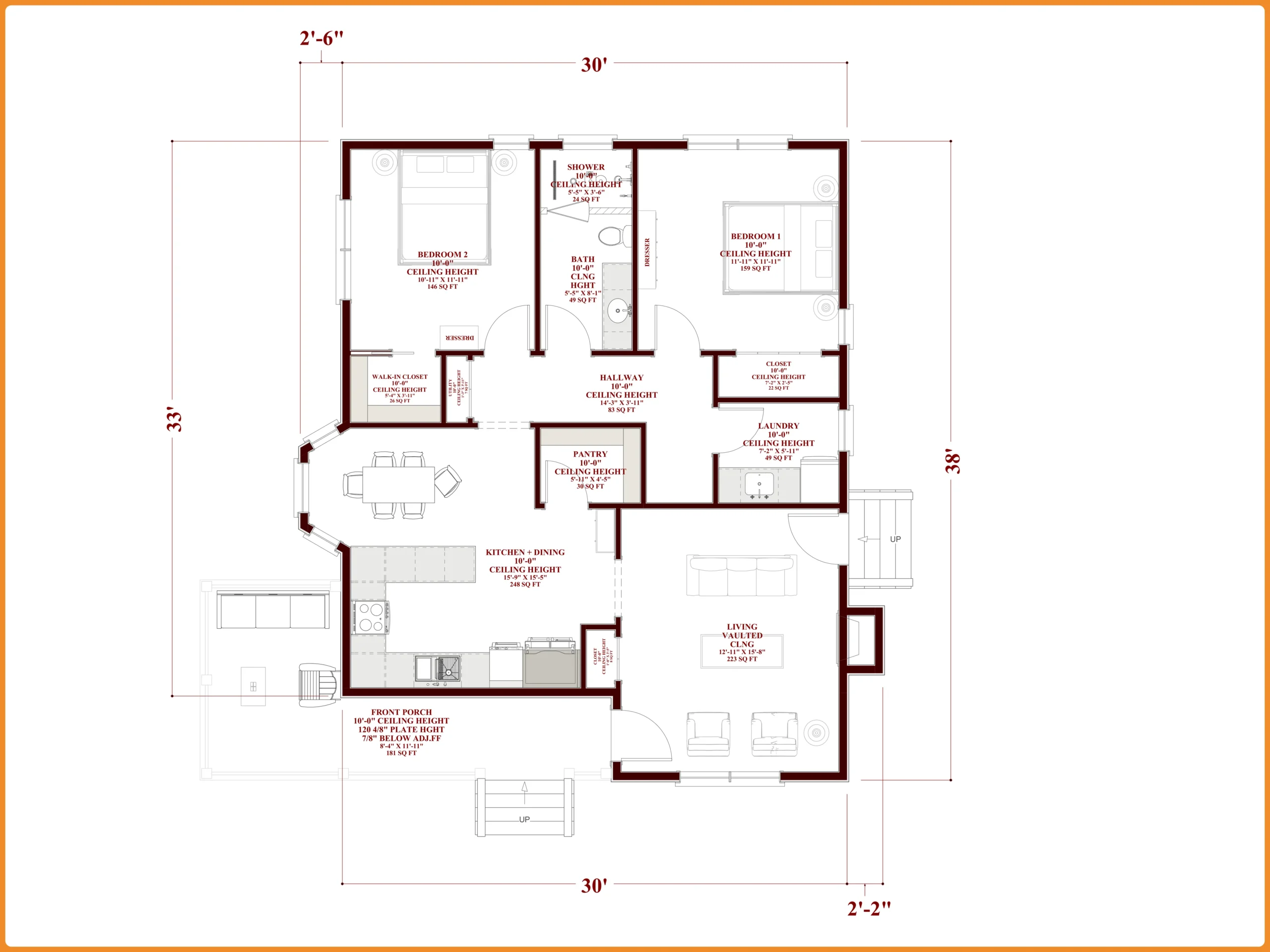
Inside, the layout maximizes every square foot.
The vaulted living room immediately creates a sense of openness. With over 221 sq ft of space and elevated ceiling design, this area feels significantly larger than typical small house living rooms — ideal for cozy evenings or entertaining guests.
The open kitchen and dining area span approximately 248 sq ft, allowing smooth movement and natural lighting. The dedicated pantry adds valuable storage — a feature often missing in homes under 1,100 sq ft.
Bedroom 1 (159 sq ft) and Bedroom 2 (140 sq ft) both feature 10-foot ceiling heights, enhancing comfort and air circulation. Bedroom 2 includes a walk-in closet for improved organization.
The 49 sq ft full bathroom includes a practical shower layout, and the separate 10-foot laundry room ensures daily tasks remain convenient and organized.
Construction Specifications:
-
Width: 30’
-
Depth: 38’
-
Height: 22’-2”
-
Conditioned Area: 1,083 sq ft
-
Unconditioned Area: 181 sq ft
-
Total Coverage: 1,264 sq ft
-
Lot Size Compatibility: 0.11 Acre
-
Exterior Framing: 2×6 Wood
-
Interior Framing: 2×4 Wood
-
Main Roof Pitch: 8:12
-
Foundation: Crawlspace
This home plan is ideal for:
-
Small family homes
-
Downsizing homeowners
-
Vacation cottages
-
Starter homes
-
Rental investment properties
At TM Studio-Small House Design, we focus on practical, build-ready plans optimized for US construction standards. This design balances beauty and efficiency — making it a high-value choice in today’s housing market.

Reviews
There are no reviews yet