Description
Discover the perfect blend of comfort, efficiency, and timeless design with this beautifully crafted 2-bedroom country home plan (TMS-105-CF1) by TM Studio-Small House Design.
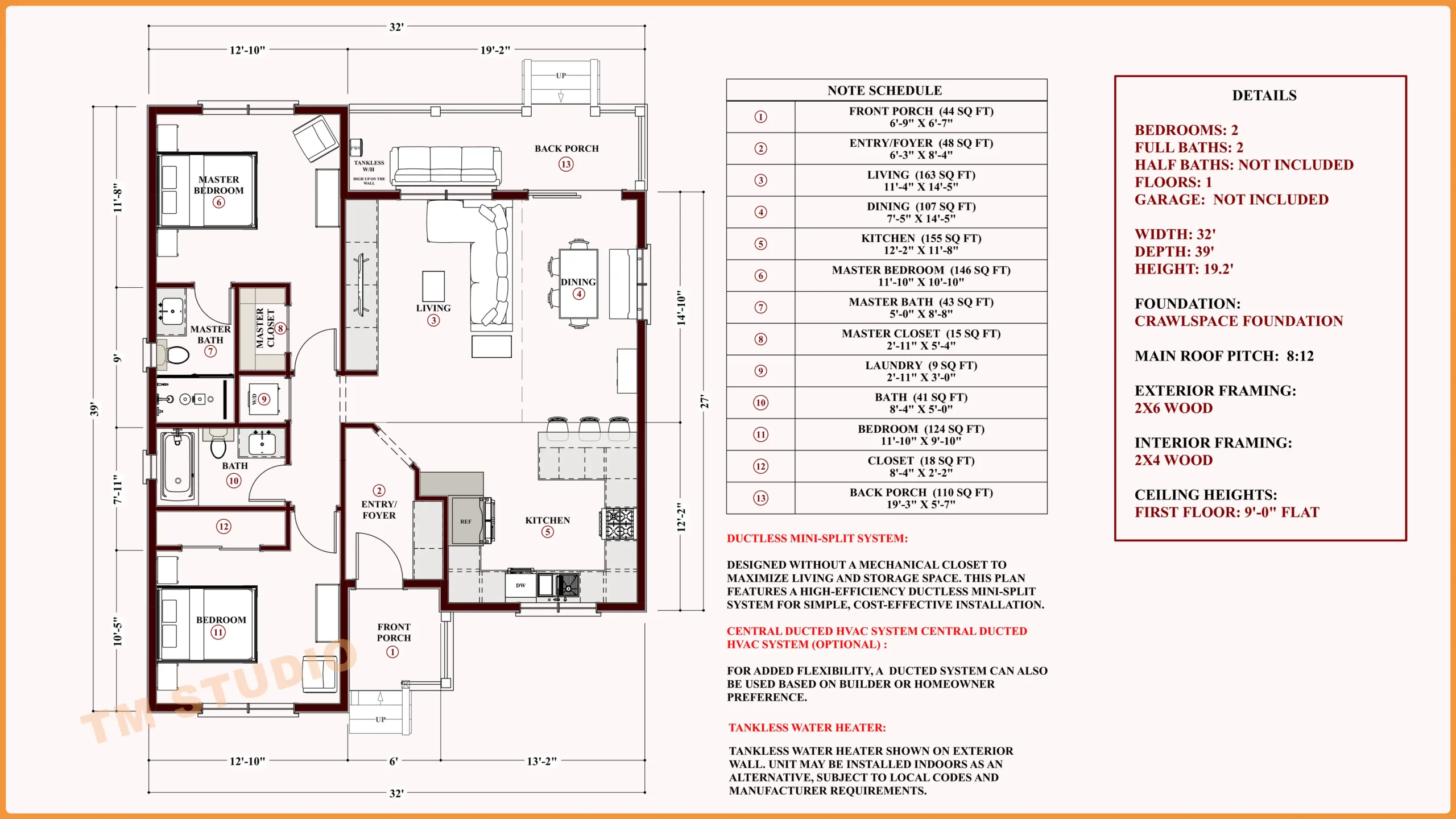
Designed for modern living, this single-story home offers 1,008 sq ft of conditioned space, making it an excellent choice for homeowners seeking a compact yet highly functional layout. Whether you’re building a starter home, downsizing, or creating a peaceful getaway, this design delivers both practicality and charm.
Step through the inviting front porch into a welcoming entry foyer that opens into a bright and airy living space. The open-concept living and dining areas are thoughtfully arranged to maximize natural light and create a seamless flow—perfect for relaxing evenings or entertaining guests.
The kitchen layout is both stylish and efficient, offering generous counter space and a smart work triangle that enhances everyday usability. Just steps away, the dining area connects effortlessly to the back porch, extending your living space outdoors.
The home features two well-sized bedrooms, including a private master suite with its own bathroom and closet, ensuring comfort and privacy. A second full bathroom serves guests and the additional bedroom, making this layout highly practical for families or visitors.
This plan also includes a dedicated laundry space, smart storage solutions, and a tankless water heater system, providing energy efficiency and modern convenience. Built with 2×6 exterior framing, a crawlspace foundation, and 9-foot ceilings, this home offers both structural quality and a spacious interior feel.
With its 32’ width and 39’ depth, this design fits comfortably on smaller lots while still delivering everything you need in a full-featured home.
✨ If you’re looking for a compact, stylish, and build-ready country home, TMS-105-CF1 is a perfect choice from TM Studio-Small House Design.

Reviews
There are no reviews yet